Toggle navigation
About
Joe Bitar
Philosophy
Said Bitar
Presence
Services
Raya Bitar
News
Projects
Timeline
Press
Presence
Contact
Projects
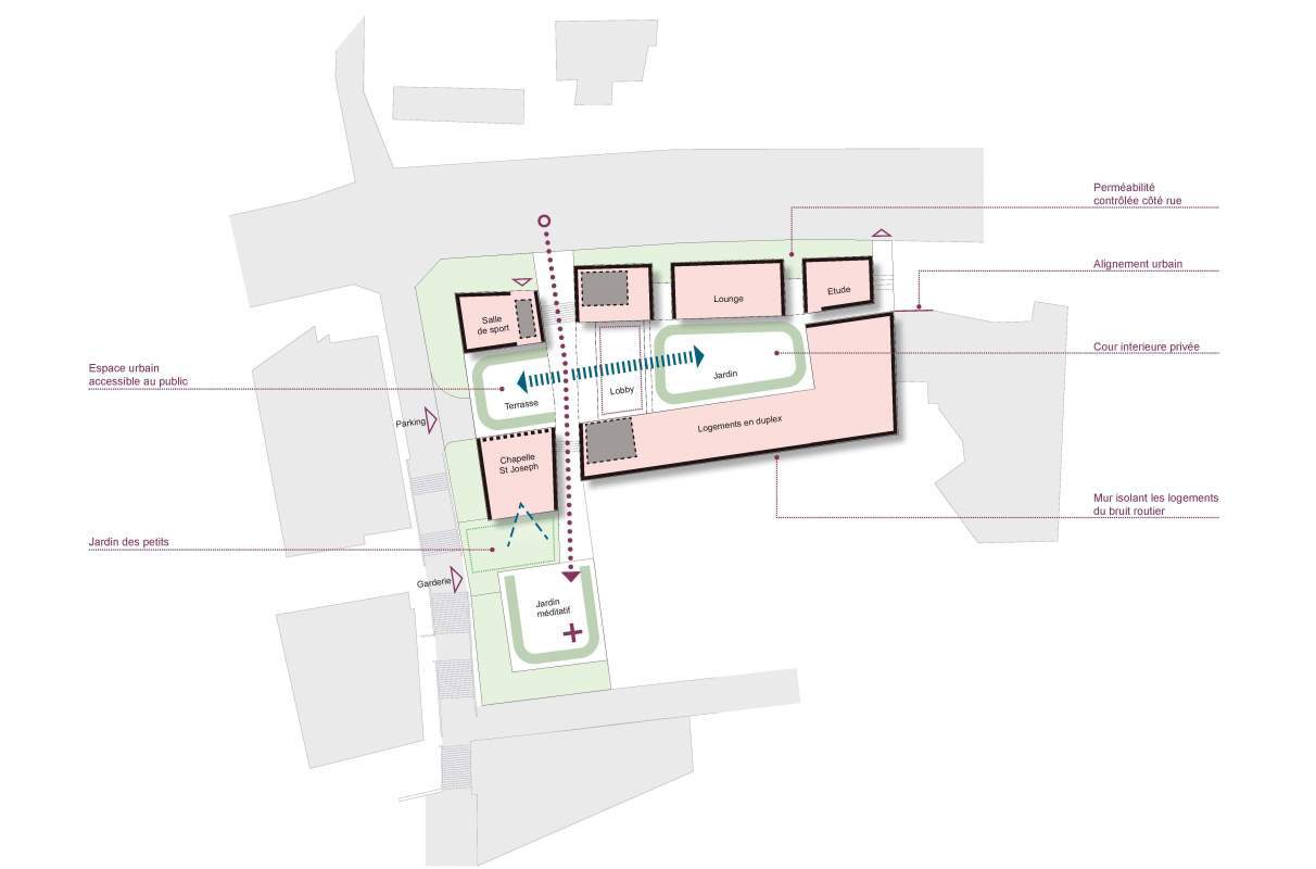
USJ Tyan Students' Residence
Back
More Info
More Info
Similar Projects
Villa CH
Baabdat
Private Residence, Interior, Most Viewed
Mosul International Airport
Mosul
Airport | Industrial, Most Viewed
Najran University Center
Najran
Hotels | Conference, Educational | Cultural, Most Viewed
Belgian Chancellery
Yarzeh
Offices | Commercial, Interior, Most Viewed
Gold Refinery
Al Maktoum Airport, Dubai
Offices | Commercial, Educational | Cultural, Airport | Industrial, Most Viewed
M-Tower
Achrafieh, Beirut
Residential, Offices | Commercial, Most Viewed